2901 Camino Del Gusto

$395,000 $399,000

1 of 26

2901 Camino Del Gusto

$395,000 $399,000

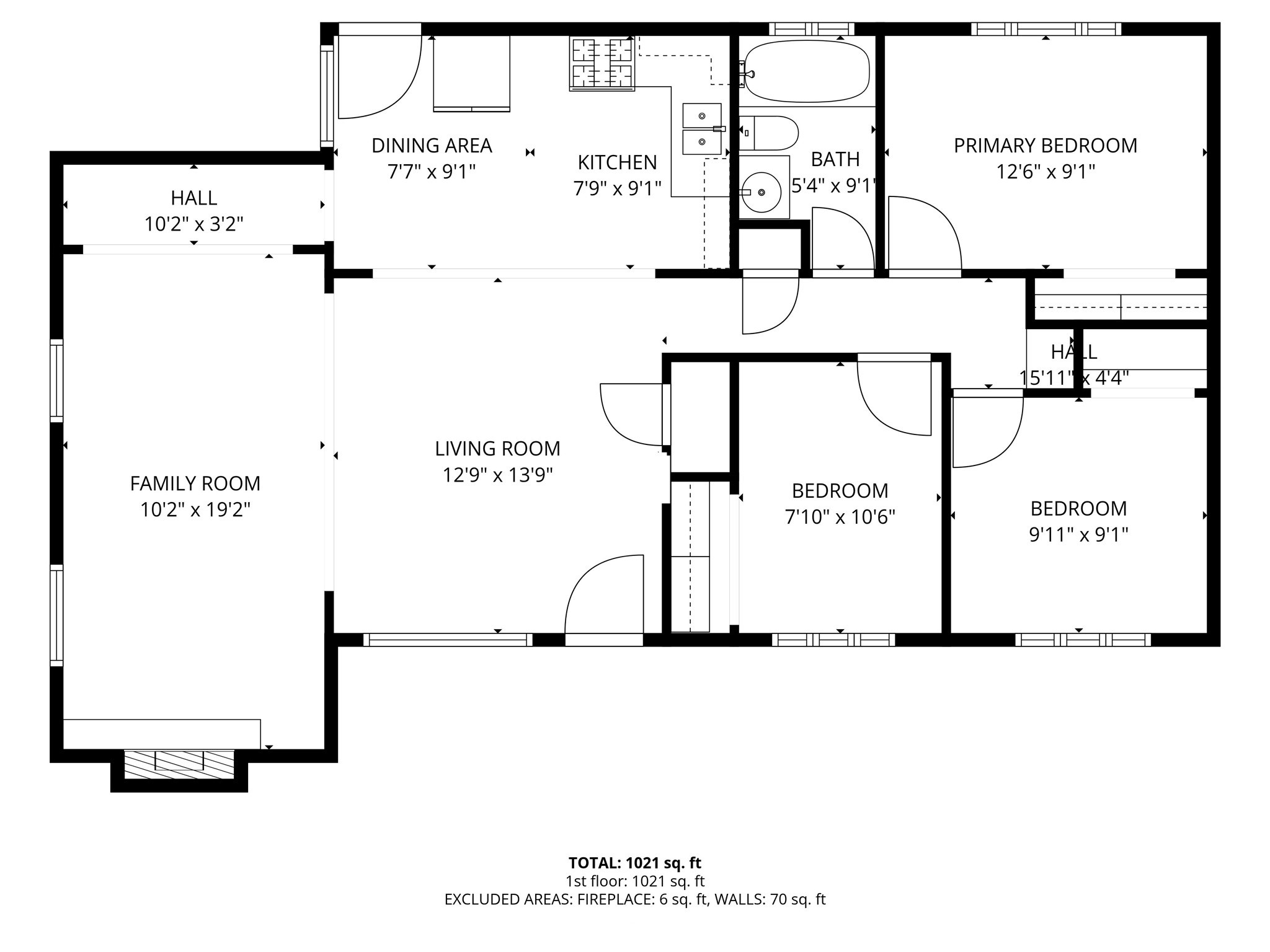
  • 3 beds
  • 1 baths
  • 1280 sqft

Contact Presenting Broker

    Tierra Team

    505.780.1152

    Key Features

    • MLS: 202505420
    • Status: Active
    • Price: $395,000
    • Bedrooms: 3
    • Full Baths: 1
    • Area: 4S-SF City Limit SWS
    • Type: Single Family Residence
    • Acres: 0.17
    • Total Sqft: 1,280

    About this Property

    Discover this charming single-level home on a large lot in the established La Resolana neighborhood of Santa Fe. With 3 bedrooms and 1 full bath, this residence offers approximately 1,280 sq ft of living space designed for comfort and convenience.A den addition with a wood-burning fireplace creates a cozy retreat, while the backyard portal provides shaded outdoor living perfect for entertaining or relaxing. The spacious lot includes a storage shed and a drive-through carport with backyard access, adding both practicality and versatility.Inside, you'll find brick and tile flooring, insulated windows, and forced-air heating with evaporative cooling. There is an additional structure in the back currently used as a game room. Situated in a quiet residential area, this property is close to parks, shopping, and schools, offering both convenience and community. The La Resolana subdivision is known for its established charm and accessibility to Santa Fe's cultural and commercial hubs.

    Additional Features

    • Type Single Family Residence
    • Stories One story
    • Style Pueblo, One Story
    • Days On Market 132
    • Parking FeaturesCarport
    • Parking Spaces3
    • AppliancesDishwasher, Oven, Range, Refrigerator
    • Interior FeaturesNo Interior Steps
    • Fireplaces1
    • Fireplace FeaturesWood Burning
    • HeatingForced Air
    • FlooringBrick, Tile
    • Security FeaturesHeat Detector, Smoke Detector(s)
    • Construction MaterialsFrame
    • RoofMetal, Pitched
    • Other StructuresStorage
    • Pool FeaturesNone
    • SewagePublic Sewer

    Neighborhoods

    Santa Fe City Southwest

    Santa Fe city southwest, the largest area of Santa Fe and still growing…. West SideThis older, family community boasts an eclectic mix of commercial development and mid-priced adobe structures. St. Anne's church and Larragoite elementary school help create a neighborhood atmosphere. Barrio de la CanadaClose to town and just west…

    Schools

    • Elementary School: Kearney
    • Junior High School: Milagro
    • High School: Santa Fe

    Listing Brokerage

    IDX listing

    Phillip Varela

    Varela Real Estate, Inc.

    View Map
    Click to View Map
    The data relating to real estate for sale in this web site comes in part from the Internet Data exchange (“IDX”) program of SFAR MLS, Inc. Real estate listings held by brokers other than Sotheby's International Realty ® are marked with the IDX logo. All data in this web site is deemed reliable but is not guaranteed.